Studio Perancangan Arsitektur 1
infitime

Studio Perancangan Arsitektur 1
Masing-masing kampus memiliki ketentuan yang berbeda di setiap mata kuliah*







Gambar Arsitektur Dasar
Garis Arsitektur
























Kita hanya boleh menggunakan pensil dan penghapus, tidak boleh menggunakan penggaris / alat bantu lain dan harus 1 kali tarikan garis tidak boleh berulang.
Gradasi Garis Arsitektur


Kita hanya boleh menggunakan pensil dan penghapus, tidak boleh menggunakan penggaris / alat bantu lain kecuali hanya untuk membuat garis bantu. dan harus 1 kali tarikan garis tidak boleh berulang.
















Gradasi Garis Arsitektur


Kita hanya boleh menggunakan pensil dan penghapus, tidak boleh menggunakan penggaris / alat bantu lain kecuali hanya untuk membuat garis bantu. dan harus 1 kali tarikan garis tidak boleh berulang.
















Huruf & Angka Arsitektur Dasar


kita hanya boleh menggunakan pensil dan penghapus, tidak boleh menggunakan penggaris / alat bantu lain kecuali hanya untuk membuat garis bantu.
Vegetation Symbol
























Gambar Proyeksi Arsitektur Dasar


Gambar proyeksi menggambarkan objek 3D/2D sehingga bentuknya bisa dipahami dengan jelas dari berbagai arah

Dwimatra & Trimatra
Dwimatra adalah bentuk atau gambar yang memiliki dua dimensi saja, yaitu panjang dan lebar, tanpa kedalaman.






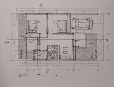
Gambar Kerja


---










Gambar Perspektif Arsitektur


Gambar perspektif arsitektur sebenarnya ada cara/rumus dalam menentukan jumlah dan posisi penempatan titik hilang supaya hasil gambar proporsinya pas dan gambar tidak distorsi.
Gambar disamping menggunakan 3 titik hilang "di samping kanan .kiri dan di atas", posisi ketiga titik hilang berada diluar kertas gambar



Gambar Perspektif Arsitektur
Gambar perspektif arsitektur sebenarnya ada cara/rumus dalam menentukan jumlah dan posisi penempatan titik hilang supaya hasil gambar proporsinya pas dan gambar tidak distorsi.
Gambar disamping menggunakan 3 titik hilang "di samping kanan .kiri dan di atas", posisi ketiga titik hilang berada diluar kertas gambar
Gambar Perspektif Arsitektur
Gambar perspektif arsitektur sebenarnya ada cara/rumus dalam menentukan jumlah dan posisi penempatan titik hilang supaya hasil gambar proporsinya pas dan gambar tidak distorsi.
Gambar disamping menggunakan 3 titik hilang "di samping kanan .kiri dan di atas", posisi ketiga titik hilang berada diluar kertas gambar




Gambar Perspektif Arsitektur


Gambar perspektif arsitektur sebenarnya ada cara/rumus dalam menentukan jumlah dan posisi penempatan titik hilang supaya hasil gambar proporsinya pas dan gambar tidak distorsi.
Gambar disamping menggunakan 3 titik hilang "di samping kanan .kiri dan di atas", posisi ketiga titik hilang berada diluar kertas gambar











